BYTOVÝ DŮM - TOVAČOV
Proč právě Tovačov?
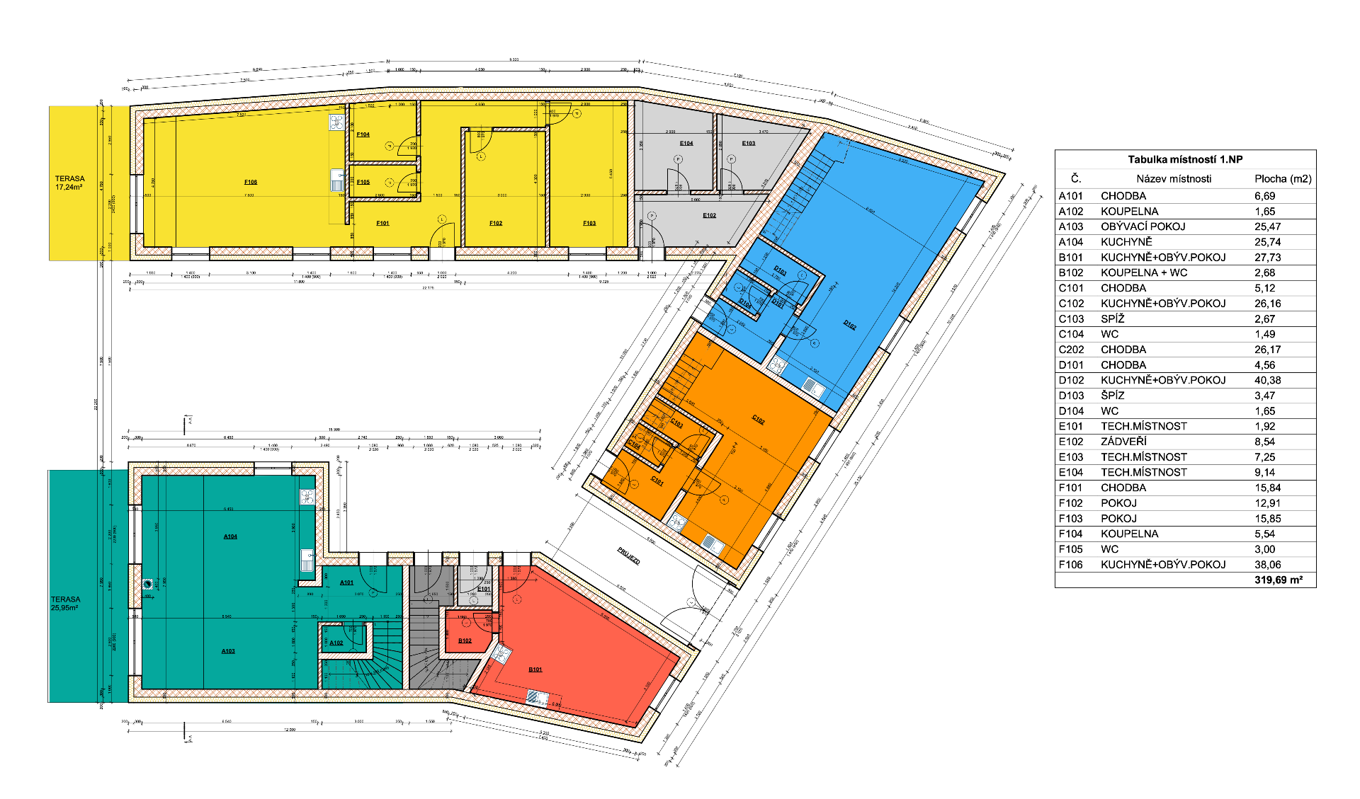
Tovačov je malebné městečko uprostřed Hané s viditelnou spanilou věží se spoustou přírodního vyžití. Je obklopen jezery, rybníky a rozlehlými lužními lesy. Úžasné místo pro rodiny s dětmi nám slibuje rodinnou oázu pro spokojený život. Bytový dům se bude nacházet v Tovačově, v klidné ulici Jiráskova č.p. 96. Tovačov jakožto malé město s 2460 obyvateli. Nachází se zhruba 15 kilometrů od Olomouce, Přerova a Prostějova a má vynikající dopravní dostupnost. Ve městě je kompletní infrastruktura - školka, základní devítiletá škola, všeobecní lékaři, zubař a další občanská vybavenost. Dům je nyní koncipován jako dvougenerační, je na pozemku o rozloze cca 1400 m2 a jeho zastavěná plocha je cca 360 m2. K domu náleží ještě dílna s garáží. V domě již nyní existuje bytová jednotka (A10), která je v nájmu a generuje pravidelný finanční příjem společně s malou bytovou jednotkou v části bytu B3. Pozemek a dům jsou nyní zapsány na dvou LV. V rámci investičního záměru dochází k jejich sloučení.
Cíl projektu?
Chceme vytvořit oázu rodinného bydlení, kde se bude 5 rodin cítit bezpečně a přitom s moderním zázemím bytového domu v Jiráskově ulici. Bytový dům bude splňovat nejnovější nároky na zateplení a ekologičnost bydlení a to jak zateplenou fasádou s plastovými okny s hliníkovým jádrem a s trojsklem. V rámci ekologičnosti objektu bude vytápění zajištěno pomocí tepelného čerpadla a 20 KW solární elektrárnou. V rámci uzavřeného dvorního traktu budete moci využít jak skladovací kóji, tak pakovací místo ke každému bytu ve vnitro bloku. V rámci každé bytové jednotky je také k dispozici malá zahrádka v všechny byty mají zastřešené terasy. V neposlední řadě se na zahradě domu nachází gril pergola a společný vinný sklep.




